5 locali in affitto

Siracusa, Via Teramo
€ 600 / mese
5 locali 5 locali
163 Mq 163 Mq
2 bagni 2 bagni

5 locali in affitto

Siracusa, Via Teramo

Descrizione annuncio

Zona Politi - Adiacente Via Torino - Vista Mare

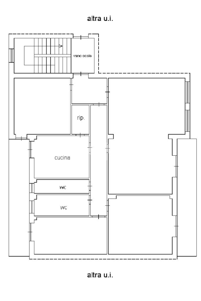
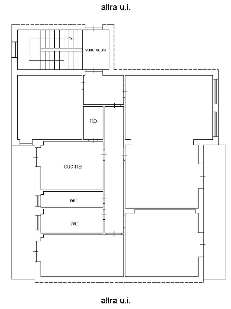
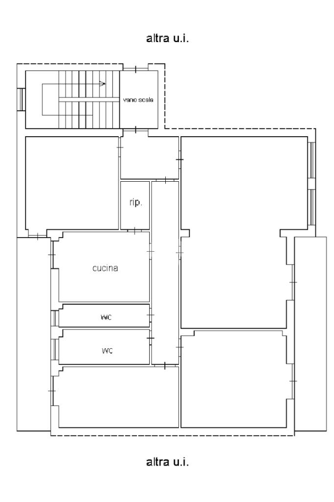
Tecnocasa Siracusa Centro propone in locazione quadrilocale di recente restauro, posto al terzo piano di un edificio non servito da ascensore.

L’immobile, con una superficie di circa 160 mq, si distingue per l’ampiezza degli ambienti e la presenza di due balconi di generose dimensioni.

La distribuzione interna è la seguente:


• Ingresso su salone doppio.


• Tre camere da letto matrimoniali.


• Cucina abitabile con annesso vano dispensa.


• Bagno principale con box doccia.


• Secondo servizio.

•Due balconi.

Le spese relative alla manutenzione e pulizia degli spazi comuni sono di 60,00 circa mensili.

L’appartamento, si presenta in buone condizioni ed è pronto per essere arredato secondo le esigenze del futuro conduttore.

Possibilità di visionarlo previo appuntamento telefonico.

PER QUALSIASI INFORMAZIONE POTETE CHIAMARE AL NUMERO 0931/1987199 - WHATSAPP 3248829967 OPPURE INVIARE UN'EMAIL A srcn7 , UN NOSTRO AGENTE SARA' PRONTO A RISPONDERE ALLE VOSTRE DOMANDE CON PROFESSIONALITA' E CORTESIA.

Mostra tutto

Nelle vicinanze

Trasporto pubblico Trasporto pubblico
stazione di Siracusa
stazione di Siracusa
1,4 Km
Torino est
Torino est
50 m
Torino ovest
Torino ovest
60 m
Ricariche auto elettriche Ricariche auto elettriche
Siracusa Cittadella dello Sport | EnelX
390 m
Una Hotel One
600 m
Catacombe di San Giovanni | EnelX
690 m
Siracusa Tunisi | EnelX
760 m
EnelX Siracusa Tisia
910 m
Scuole Scuole
I.C. Salvatore Raiti
50 m
I.T.T. Enrico Fermi
140 m
Scuole
250 m
XIV I.C. Karol Wojtyla
410 m
III I.C. Santa Lucia (plesso Santa Lucia)
440 m
Farmacia Farmacia
Farmacia Lupo
300 m
Farmacia del Viale Tris
710 m
Farmacia Paravizzini
730 m
Farmacia Tisia
780 m
Farmacia Cataldi
790 m
Ospedali Ospedali
Ospedale Umberto I
900 m
Ospedale Umberto I (presidio Alessandro Rizza)
2,0 Km
Supermercati Supermercati
Crai
160 m
Decò
250 m
Conad City
600 m
Natura Sì
650 m
Decò Maxistore
840 m
Negozi Negozi
Sicilia Mania
80 m
L'Arte del Pane
120 m
Panificio La Borgata
260 m
Donna Più
280 m
La Panetteria
390 m
Bar Bar
Zen
340 m
Hmora
730 m
Il Birraio
1,4 Km
Civico Maltato
1,5 Km
Boats
1,6 Km
Ristoranti Ristoranti
Ristorante Primavera
150 m
Jonico a' Rutta e' Ciauli
330 m
Le Jardin du Gourmet
470 m
Don Chisciotte
510 m
A Tannura
540 m
Mostra tutto

Caratteristiche

Rif.:
61112880
Piano:
3 di 4 (Piano medio)
Balconi:
2
Camere da letto:
2
Arredamento:
Assente
Condizionamento:
Autonomo
Mostra tutto
Prezzo Prezzo
€ 600 / mese
Spese annue Spese annue
€ 600

Classe Energetica

G
G
G
G
G
G
G
G
G
EP globale non rinnovabile:
35.00 kW h/m² anno
EP globale rinnovabile:
8.00 kW h/m² anno
EP invernale del fabbricato:
EP estiva del fabbricato:
Anno di costruzione:
1980
Riscaldamento:
Autonomo
Tipo impianto:
Ad aria
Tipo alimentazione:
Altro

Ti interessa visionare l'immobile?

Fissa un appuntamento  Fissa un appuntamento

Richiedi informazioni

* Questi campi sono obbligatori
Affiliato
Studio Siracusa Centro D.I.
Viale Zecchino, 80 96100 Siracusa (SR)

Il nostro staff


  • Heni Ben Najeh
    Responsabile

  • Asia Moretto
    Coordinatrice

  • Fabrizio Covais
    Affiliato
Viale Zecchino, 80 96100 Siracusa (SR)
Zona: Siracusa
Mostra su mappa
Orari: Lunedì - Venerdì 09:00/13:00 e dalle 15:30/19:30 Sabato 09:00/13:00
Affiliato
Studio Siracusa Centro D.I.
Viale Zecchino, 80 96100 Siracusa (SR)

2025 Tecnocasa Franchising S.p.A. - P. IVA 08365160152 - Via Monte Bianco 60/A 20089 Rozzano (MI). Ogni agenzia ha un proprio titolare ed è autonoma. Privacy policy | Policy utilizzo | Cookie policy